- 搪玻璃设备
- 王经理:05332860177
- 不锈钢有色金属设备
- 傅经理:13906430854
- 衬四氟设备及配件
- 傅经理:15253328001
- 技术咨询服务
- 王经理:18653342297
搪玻璃反应罐之框式搪玻璃搅拌器标准
来源:未知??日期:2016-05-31
搪玻璃反应罐之框式搪玻璃搅拌器标准适用于公称压力小于或等于1.0MPa,公称容积50L~5000L,设计温度高于-20℃~200℃,搅拌器公称转速50r/min~80r/min的搪玻璃开式搅拌容器用搪玻璃框式搅拌器。
搪玻璃反应罐之框式搪玻璃搅拌器标准引用的文件有“HG/T 2052 搪玻璃设备 转动装置”、“HG 2432 搪玻璃设备技术条件”、“HG/T 2637 搪玻璃件集合尺寸检测方法”。
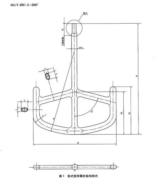
搪玻璃框式搅拌器型式、基本参数及主要尺寸
1、搪玻璃框式搅拌器的型式、基本参数及主要尺寸见图1、表1.
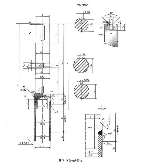
2、框式搅拌器轴头分A型、B型及C型三种型式。
A型轴头与HG/T 2052中W机型相配。
B型轴头与HG/T 2052中DZ、SZ机型相配。
C型轴头与HG/T 2052中DZ、SZ机型相配。
3、框式搅拌器轴头联接型式及尺寸
A)A型轴头件图2、表2.
B)B型轴头见图3、表3.
C)C型轴头见图4、表4.
4、A型轴头适用于50L~4000L搪玻璃开式搅拌容器。B、C型轴头适用于1000L~5000L搪玻璃开式搅拌容器。搅拌器锚翼端部线速度超过5m/s时,应优先选用B型或者C型轴头。
标记
搪玻璃框式搅拌器标记按如下规定:
搅拌器①②③-④⑤
①——框式搅拌器代号(K);
②——轴头型式(A、B、C);
③——搅拌轴公称直径(DN);
④——搅拌器长度(H);
⑤——标准号。
标记示例:
搪玻璃框式搅拌器,轴头型式为A型,直径DN为40mm,长度H为960mm,其标记为:搅拌器KA40—960 HG/T 2051.2-2007
技术要求
1、搪玻璃搅拌器用搪玻璃釉和钢材应符合HG 2432要求。
2、搪玻璃搅拌器的制造、检验与验收按HG 2432和施工图纸的要求进行。
3、搪玻璃搅拌器轴头密封段必须在搪玻璃后精加工。
4、搪玻璃搅拌器的几何公差按HG/T 2637进行检查。
4、搅拌器焊缝部位不得有明显的凹凸不平。
5、搅拌器毛衣不得有明显的成形痕迹。
6、搪玻璃搅拌器轴头应惊醒防锈处理。
运输、存储和贮存
上一篇:搪玻璃反应釜各种法兰的介绍














